Заполните форму и отправьте заявку
Заполните форму и получите консультацию
Заполните форму, чтобы записаться
Мы перезвоним и согласуем удобное для вас время

МОДУЛЬНЫЙ ДОМ 22М² ДЛЯ ДАЧИ

от 3 242 000 ₽
Готовность от 45 дней
Доставка изготовленного дома на участок
Можно заселяться уже в день монтажа на участке
ОПИСАНИЕ
Это компактный дом нового поколения для круглогодичной эксплуатации - отражение философии современного модульного жилья: функционального, эстетичного и продуманного до мелочей.
Он станет отличным решением для молодой пары, арендного бизнеса, гостевого формата или уютной дачи - пространства, где комфорт сочетается с гармонией природы и архитектуры
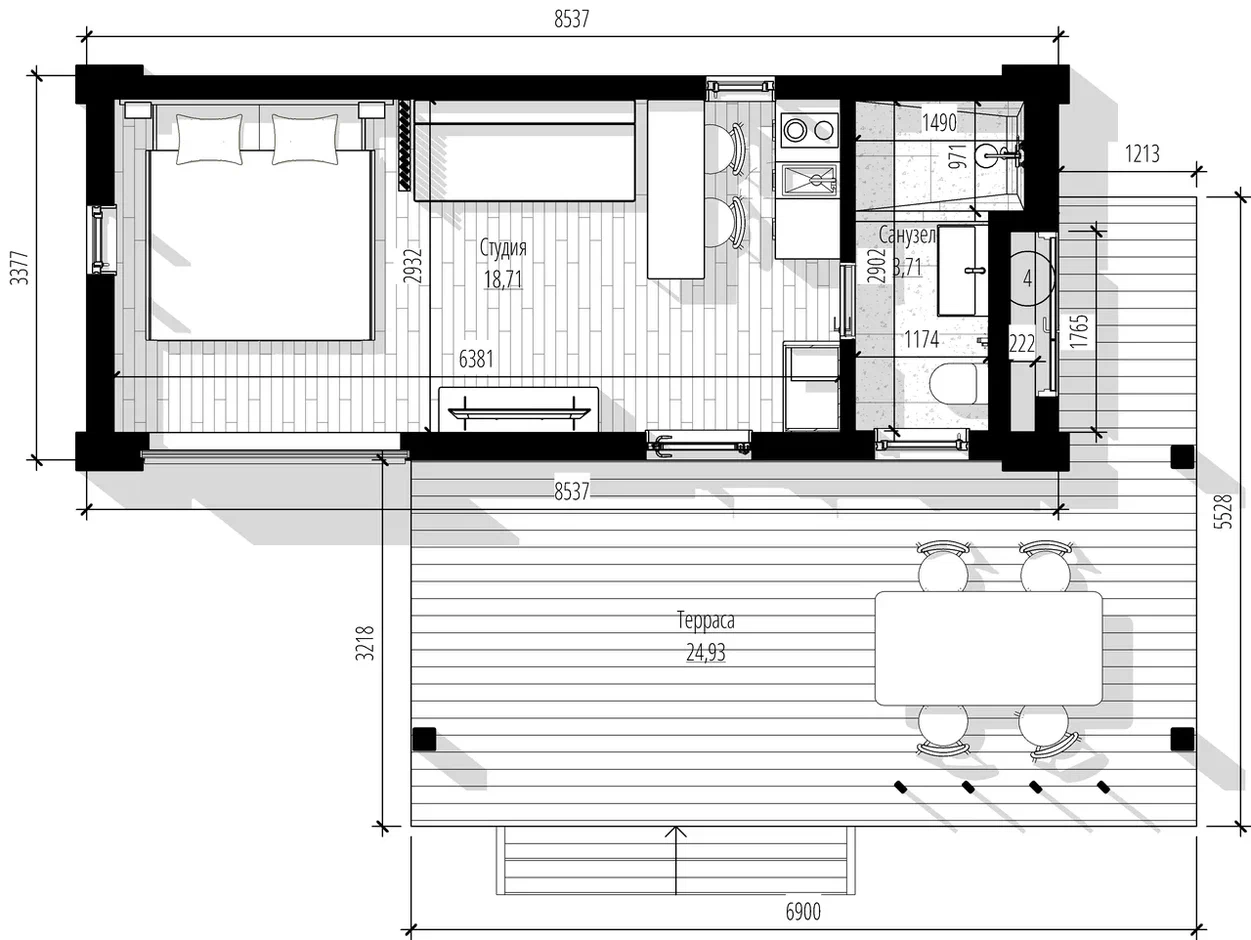
Общая площадь: 24 м²
Жилая площадь: 22,42 м²
Студия: 18,71 м²
Санузел: 3,71 м²
Габариты дома: 3,37 м х 8,53 м
Высота потолков: 2,59 м
Высота дома: 3,58 м
Вместимость: 2-4 человека
ПЛАНИРОВОЧНОЕ РЕШЕНИЕ
ФОТО ГОТОВЫХ ДОМОВ
White Box
Предчистовая отделка
Модуль приезжает на участок подготовленным к внутренней отделке
Стоимость: 3 242 024 ₽
Standart
Чистовая отделка
Чистовая отделка: "заезжай и живи". Единственное, что необходимо - мебель
Стоимость: 3 878 940 ₽
Standart +
Премиум чистовая отделка
Чистовая отделка: "заезжай и живи", но с премиальными материалами (гранит, теплый пол по всей площади, премиум сантехника и другое)
Стоимость: 4 294 382 ₽
ДОСТУПНЫЕ КОМПЛЕКТАЦИИ
Комплектация White Box
Предчистовая отделка. Доставляем подготовленный к внутренним работам модуль
а вы спокойно, без спешки, делаете отделку, устанавливаете сантехнику и электрику по своему вкусу

Что входит:
  • Электрика и освещение: Разводка кабеля (подрозетники), выводы под свет
  • Отопление: Выводы под радиаторы
  • Санузел: Выводы коммуникаций ("мокрая точка")
  • Потолок: Под отделку: листовая фанера
  • Стены (Внутри): МДФ - под покраску
  • Пол (Внутри): Листовая фанера
  • Окна: ПВХ (белые)
  • Входная дверь: Металлическая с терморазрывом
  • Водосточная система: НЕТ
  • Внешняя отделка: Планкен из сосны
Комплектация Standart
Включает всё для комфортной жизни:
  • Чистовая отделка: заезжай и живи
  • Разведённые коммуникации: электрика, водоснабжение, канализация, водоотведение
  • Установленная сантехника и теплый пол в санузле
  • Панорамные окна и надёжная входная дверь

Что входит:
  • Электрика и освещение: Всё установлено (розетки, выключатели, базовые светильники, бра)
  • Отопление: Радиаторы + тёплый пол в санузле
  • Санузел: Полностью оборудован (Плитка, унитаз, душевая система, раковина, бойлер)
  • Потолок: Готовый натяжной потолок
  • Стены (Внутри): Панели из берёзовой фанеры
  • Пол (Внутри): ПВХ плитка
  • Окна: ПВХ (белые)
  • Входная дверь: ПВХ со стеклом
  • Водосточная система: НЕТ
  • Внешняя отделка: Планкен из сосны
Комплектация Standart+
Включает всё для комфортной жизни и даже больше:
  • Полная чистовая отделка: премиальный керамогранит и напольное покрытие
  • Премиальная сантехника и осветительные приборы
  • Теплый пол по всей площади дома

Что входит:
  • Электрика и освещение: Всё установлено (Дизайнерские розетки, выключатели, контурная подцветка,
  • бра Arlight)
  • Отопление: Радиаторы + тёплый пол по ВСЕЙ площади дома
  • Санузел: Полностью оборудован (Керамогранит, дизайнерская сантехника Gappo (унитаз, душевая система,
  • раковина), душевой поддон, бойлер)
  • Потолок: Готовый натяжной потолок
  • Стены (Внутри): Фанера (опция: шпон)
  • Пол (Внутри): Премиум ПВХ плитка
  • Окна: ПВХ (черные)
  • Входная дверь: Алюминиевая дверь со стеклом (черная)
  • Водосточная система: ДА
  • Внешняя отделка: Планкен из сосны (опция: лиственница)
Все материалы хранятся и собираются в тёплом цехе, без воздействия влаги, грязи и погодных условий

До 90% работ в заводских условиях

Каждый дом - это чётко регламентированный производственный процесс с заранее определённым сроком сборки

Фиксированные сроки производства

Доставляем готовые дома,
минимум работ на участке и никакого строительного мусора

Чистый монтаж

Каждый элемент изготавливается под крышей, в контролируемых условиях, что исключает ошибки и отклонения

Тотальный контроль качества

Отлаженные процессы позволяют выпускать дома стабильно, без потери качества
и увеличения сроков строительства

Потоковое производство

КОРОТКО О ТОМ,
КАК МЫ СТРОИМ

ПРИХОДИТЕ НА ЭКСКУРСИЮ И ПОСМОТРИТЕ СВОИМИ ГЛАЗАМИ И УБЕДИТЕСЬ В КАЧЕСТВЕ

Приглашаем вас посетить наше производство, где мы подробно расскажем про технологию изготовления и сборку модульных домов
ПОРЯДОК И СПОСОБЫ ОПЛАТЫ
Наличный или безналичный расчет на расчетный счет
При приобретении дома с использованием ипотечного кредитования расчеты осуществляются через эскроу-счет в соответствии с требованиями банка
70%
Авансовый платеж
70% стоимости после подписания договора
25%
Второй платеж
25% от стоимости после уведомления о завершении производства
5%
Третий платеж
После подписания акта приема-передачи
Наши модульные дома можно приобрести с помощью льготных ипотечных программ

МОДУЛЬНЫЕ ДОМА В ИПОТЕКУ

7
Монтаж на участке
Монтаж на участке осуществляется на заранее подготовленный свайный фундамент нашими специалистами
1-2 дн.
Рассчитать доставку
6
Доставка готового дома
Доставка осуществляется с помощью траллов. Готовый дом грузится на него с помощью крана и транспортируется до вашего участка

Ниже можете рассчитать примерную стоимость доставки
1-14 дн.
Видео с производства
5

Производство дома

После предоплаты мы приступаем к изготовлению вашего дома
на заводе
от 50 дн.
Скачать пример договора
4

Заключение договора

После всех согласований подписываем договор на производство и поставку вашего дома
Подробно о проектировании
3

Проектирование

Если ваши задачи выходят за рамки типовых решений, мы предлагаем индивидуальное проектирование дома под ваши требования
от 14 дн.
Подробно об ипотеке
2

Cогласовываем проект и условия

Проект:
  • Вы озвучиваете все свои пожелания по проекту
  • Менеджер предлагает варианты реализации
Ипотека:
В случае приобретения дома в ипотеку мы запрашиваем у вас необходимые документы, направляем их в банки-партнеры и выполняем полное сопровождение, коммуникации с представителями кредитных организаций
3-14 дн.
1

Заявка на сайте

Вы оставляете заявку у нас на сайте, наш специалист связывается с вами и уточняет все детали
1-2 дн.
7 шагов от заявки до монтажа дома

ПУТЬ К ГОТОВОМУ ДОМУ

ЧТО ЕЩЕ МЫ СТРОИМ
МОДУЛЬНЫЕ БАНИ
Полностью готовые бани с предбанником, душевой и туалетом
МОДУЛЬНЫЕ ВИЛЛЫ
Помещение шириной до 10 метров и любой длинны без центральных опор
ОБСУДИМ ВАШ БУДУЩИЙ ДОМ
Есть вопросы о планировках, нюансах и стоимости?

Заполните форму - наш специалист ответит на вопросы и поможет принять решение

Также можете позвонить или написать нам:
TELEGRAM
TELEGRAM
MAX
MAX
Заполните форму и наш специалист ответит на все вопросы